Calculer une Surface de Rénovation dans un Parallélépipède Rectangle
Exercice
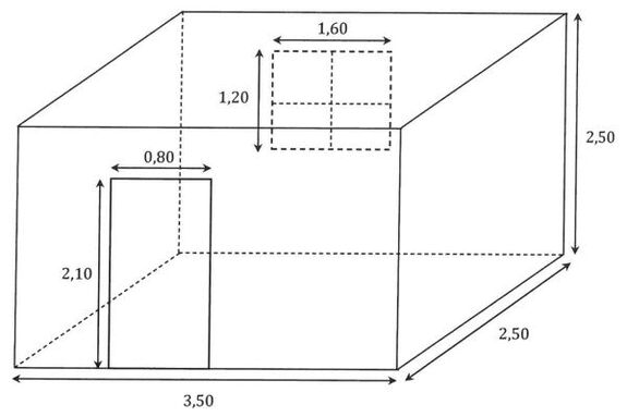
On souhaite rénover une salle de bain qui a la forme d’un parallélépipède rectangle. Il faut coller du papier peint sur les quatre murs. On n’en colle pas sur la porte, ni sur la fenêtre.
Voici un schéma de la salle de bain, les dimensions sont exprimées en mètre :

On dispose des informations suivantes :
Prix du papier peint :
Le papier peint est vendu au rouleau entier.
Un rouleau coûte 16,95€.
Un rouleau permet de recouvrir 5,3 m²
Conseil du vendeur :
Prévoir 1 rouleau de papier peint en plus afin de compenser les pertes liées aux découpes.
Prix de la colle :
La colle est vendue au pot entier.
Un pot a une masse de 0,2 kg.
Un pot coûte 5,70 €.
Conseil du vendeur :
Compter 1 pot de colle pour 4 rouleaux de papier peint.
Question 1
Montrer que la surface à recouvrir de papier peint est de 26,4 m².
Question 2
Calculer le prix, en euro, d’un mètre carré de papier peint. Arrondir au centime d’euro.
Question 3
Si on suit les conseils du vendeur, combien coûtera la rénovation de la salle de bain ?
Question 4
Le jour de l’achat, une remise de 8 % est accordée. Quel est le prix à payer après remise ? Arrondir au centime d’euro.
Correction
Surface à recouvrir de papier peint
La surface à recouvrir de papier peint est composée des quatre murs de la salle de bain. Le papier peint ne doit cependant pas recouvrir, ni la fenêtre, ni la porte. Pour déterminer la surface à recouvrir, il faut donc calculer la surface des quatre murs et y soustraire la surface de la fenêtre et de la porte.
Pour obtenir la surface de l’un des murs carrés (mur de gauche et de droite), on élève la mesure de l’un des côtés au carré. Pour obtenir la surface de l’un des murs rectangles (mur à l’avant et à l’arrière), on multiplie la longueur par la largeur.
On utilise la même formule pour calculer la surface de la fenêtre et de la porte, car il s’agit également de rectangles. Le total de la surface à recouvrir, après soustraction des surfaces de la porte et de la fenêtre, est de 26,4 m².
Prix d’un mètre carré de papier peint
Le prix du rouleau de papier peint est de 16,95 €. Un rouleau permet de recouvrir une surface de 5,3 m². Le prix du rouleau de papier peint est proportionnel à la surface à recouvrir. On est donc en présence d’une situation de proportionnalité.
Le prix en euro d’un mètre carré de papier peint est obtenu en divisant 16,95 par 5,3. Le résultat doit être arrondi au centime d’euro. Le prix de 1 m² de papier peint est donc d’environ 3,20 €.
Coût de la rénovation de la salle de bain
La surface à recouvrir de papier peint est de 26,4 m². Chaque rouleau permet de recouvrir une surface de 5,3 m². On peut obtenir le nombre de rouleaux à acheter en divisant 26,4 par 5,3. Le résultat de la division est environ 4,98. Il faut donc cinq rouleaux de papier peint.
Selon les conseils du vendeur, il est nécessaire d’acheter un rouleau de papier peint supplémentaire pour compenser les pertes liées aux découpes. Il faut donc acheter un total de six rouleaux de papier peint. Le vendeur conseille également de compter un pot de colle pour quatre rouleaux de papier peint. Pour six rouleaux, ça fait donc un total de deux pots de colle.
Le papier peint est vendu à 16,95 €. Le pot de colle est vendu à 5,7 €. 6 × 16,95 + 2 × 5,7 = 113,1. Si l’on suit les conseils du vendeur, le coût de la rénovation de la salle de bain est de 113,10 €.
Prix à payer après remise
Le jour de l’achat, une remise de 8 % est accordée. Cela signifie que l’on va payer 92 % du prix total (100 % - 8 %). Il faut donc calculer 92 % de 113,1. On peut calculer le pourcentage d’une quantité à l’aide d’une multiplication.
92 % de 113,1 est équivalant à 92/100 × 113,1. Le résultat de cette multiplication est 104,052. Arrondi au centime d’euro, le prix est de 104,05 €. Le prix à payer après remise est donc de 104,05 €.
Extrait
Cet exercice est extrait de l’épreuve de mathématiques du Brevet Amérique du Nord (DNB) du 3 juin 2021.
